1. 공사개요
 1) 현장 위치 : 목동 신시가지 6단지 아파트 65A㎡ Type
 2) 공사 범위 : 인테리어, 전기, 통시, 소방, 설비, 냉난방
 3) 공사 기간 : 설계 기간 (1주) + 공사 기간 (4~5주)
 4) 공사 규모 : 65㎡
2. 컨셉
 1) 톤 : 따뜻한 우드 패널을 중심으로 화이트와 베이지 컬러를 매치해 편안하고 차분한 분위기를 연출했습니다.
 2) 스타일 : 모더니즘과 내추럴한 스타일을 결합하여 깔끔하면서도 아늑한 느낌을 강조했습니다.
 3) 재택근무가 많은 클라이언트를 위해 자연과 조화를 이루는 공간에서 편안함과 따뜻함을 느낄 수 있도록 설계했습니다.
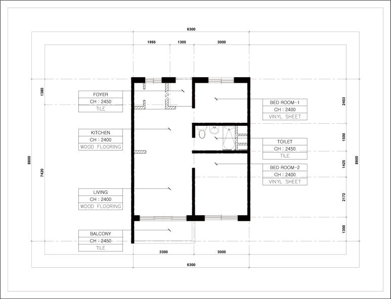
3-1. 변경 전 평면도
 변경 전 평면도에는 침실 2개와 협소한 주방, 거실이 포함되어 있습니다.

3-2. 변경 후 평면도
 클라이언트의 요구에 맞춰 침실 수를 줄이고 발코니를 확장하여 더욱 넓은 커뮤니티 공간을 제공했습니다.​
 또한, 재택근무를 선호하는 클라이언트를 위해 거실에 넓은 식탁을 배치해 업무와 식사를 한 공간에서 편리하게 해결할 수 있도록 디자인했습니다.
3-3. 변경 후 천정도
 천장 디자인은 간접 조명과 다운라이트를 활용하여 조도를 자유롭게 조절할 수 있도록 설계했습니다. 또한, 곳곳에 간접등을 배치해 커뮤니티 공간의 분위기를 더욱 세련되고 아늑하게 연출했습니다.
4. 투시도
 1) KITCHEN.
 현관에서 들어왔을 때의 첫인상입니다. 따뜻한 우드톤을 활용해 정감 있는 분위기를 연출했으며, 발코니를 확장하여 공간이 더욱 넓고 개방감 있게 보이도록 디자인했습니다.
 2) LIVING & DINING ROOM.
 주방은 우드 패널의 가구를 사용해 따뜻하고 아늑한 분위기를 연출했습니다. 또한, 다용도실을 없애고 세탁기를 주방 가구에 빌트인으로 통합해 공간 활용도를 높였습니다.

  3) DINING ROOM.
다이닝 공간은 재택근무가 가능한 환경을 조성하면서 동시에 식사를 편안하게 할 수 있는 공간으로 디자인되었습니다.

 4) TOILET.
 화장실은 베이지 톤의 타일을 사용해 따뜻하고 위생적인 느낌을 주었으며, 기존에는 없었던 파우더룸 겸 드레스룸을 화장실 앞에 배치하여 더욱 편리하게 이용할 수 있도록 설계했습니다.
5. 예상 견적
예상 견적은 평당 250만 원에서 300만 원입니다.
(추가 변동 없는 견적입니다. 상황에 따라 절감 가능)
Back to Top